2Beds Apartment in Karuizawa-machi,Kitasaku-gun, Nagano

No review yet. Write Review
Regular price
¥37,800,000
Regular price
Sale price
¥37,800,000

Vendor : PDJ Indonesia

Product Type : Apartment

Hurry! Only
0
units left in stock!
Reassurance Image
今すぐ売る
今コンタクトしてください
ローカルツアー
予約可能
顧客サポート
インドネシアで利用可能
VRツアー
利用可能
Trusted Image

2Beds

1Bath

145 m² (1555 sqft)

Property Type: Apartment
Gross Yield:
Estimated Annual Rental Income:

Description

A European-style apartment located at the southern foot of Mount Asama. It is a south-facing, approximately 144sqm apartment with a sense of openness.
A resort condo that allows pets (with terms and conditions). Free underground parking is also available. There is an elevator next to the entrance, making it easy to move from the underground parking lot to your room.

Location

Oaza Nagakura Aza Ohinata, Karuizawa-machi, Kitasaku-gun, Nagano

Transportation

Get off at Naka-Karuizawa Station on the Shinano Railway Line, about 6 minutes by car (about 4km)

Management Fee

71,200 JPY/month

Repairing Fund

 

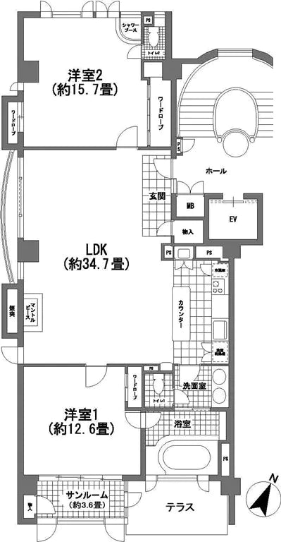
Floor Plan

2Beds 1Bath Living

Floor Size

144.51 m² (1555 sqft)

Property Floor

Level 1 of 3-story building

Balcony Size

6.56 m² (71 sqft)

Year Built

Feb, 1992

Structure

RC

Land Rights

Ownership

Total Units

Status

Occupied

Available From

Ask

Parking Space

Available
0〜 JPY/month

Type of Transaction

Brokerage

Property Management

Full Consignment

Management Method

Full-time

Remark

Remarks:
Satellite broadcasting, cable broadcasting, auto-lock, private storage for each unit

Common Area:
●Lounge/vending machine corner

Notes:
-

Features, Facilities & Equipment

  • Hot Water Supply

Other Expenses

Details of expenses

Operating expenses (maintenance fee, etc.)
Total Management Fee(monthly) : JPY 71,200
Breakdown
Management fee : JPY 71,200(non-taxable)/monthly
※Utility charges will be billed separately.

One-time Fees upon purchasing
Contract Stamp Fee : JPY 10,000
Brokerage Fee : JPY 1,313,400
Remarks : * Repair reserve fund: Collection is currently suspended
※Contract Stamp Fee and Brokerage Fee are subject to change depending on the actual sales price.
※Property tax for the year of sale will be allocated to Seller and Buyer based on the delivery date.

 


これはカスタム製品タブです。製品ごとに異なるタブの内容を設定できます。製品構成ページの管理にタブのコンテンツを追加できます。

Ask more about this property!!!

"Become a Japanese Investor Today!"