2Beds Apartment in Karuizawa-machi,Kitasaku-gun, Nagano
- Regular price
- ¥37,800,000
- Regular price
-
- Sale price
- ¥37,800,000
- Unit price
- per
Vendor : PDJ Indonesia
Product Type : Apartment
Couldn't load pickup availability


2Beds
1Bath
145 m² (1555 sqft)
- Property Type: Apartment
- Gross Yield:
- Estimated Annual Rental Income:
Description
A European-style apartment located at the southern foot of Mount Asama. It is a south-facing, approximately 144sqm apartment with a sense of openness.
A resort condo that allows pets (with terms and conditions). Free underground parking is also available. There is an elevator next to the entrance, making it easy to move from the underground parking lot to your room.
Location
Oaza Nagakura Aza Ohinata, Karuizawa-machi, Kitasaku-gun, Nagano
Transportation
Get off at Naka-Karuizawa Station on the Shinano Railway Line, about 6 minutes by car (about 4km)
Management Fee
71,200 JPY/month
Repairing Fund
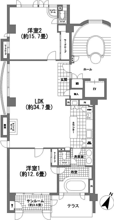
Floor Plan
2Beds 1Bath Living
Floor Size
144.51 m² (1555 sqft)
Property Floor
Level 1 of 3-story building
Balcony Size
6.56 m² (71 sqft)
Year Built
Feb, 1992
Structure
RC
Land Rights
Ownership
Total Units
Status
Occupied
Available From
Ask
Parking Space
Available
0〜 JPY/month
Type of Transaction
Brokerage
Property Management
Full Consignment
Management Method
Full-time
Remark
Remarks:
Satellite broadcasting, cable broadcasting, auto-lock, private storage for each unit
Common Area:
●Lounge/vending machine corner
Notes:
-
Features, Facilities & Equipment
- Hot Water Supply
Other Expenses
Details of expensesOperating expenses (maintenance fee, etc.)
Total Management Fee(monthly) : JPY 71,200
Breakdown
Management fee : JPY 71,200(non-taxable)/monthly
※Utility charges will be billed separately.
One-time Fees upon purchasing
Contract Stamp Fee : JPY 10,000
Brokerage Fee : JPY 1,313,400
Remarks : * Repair reserve fund: Collection is currently suspended
※Contract Stamp Fee and Brokerage Fee are subject to change depending on the actual sales price.
※Property tax for the year of sale will be allocated to Seller and Buyer based on the delivery date.