4-chome Matsunaga, Ikki-cho, Aizuwakamatsu City, Fukushima Prefecture

No review yet. Write Review
Regular price
¥23,800,000
Regular price
Sale price
¥23,800,000

Vendor : PDJ Indonesia

Product Type : House

Hurry! Only
0
units left in stock!
Reassurance Image
今すぐ売る
今コンタクトしてください
ローカルツアー
予約可能
顧客サポート
インドネシアで利用可能
VRツアー
利用可能
Trusted Image

Deskripsi

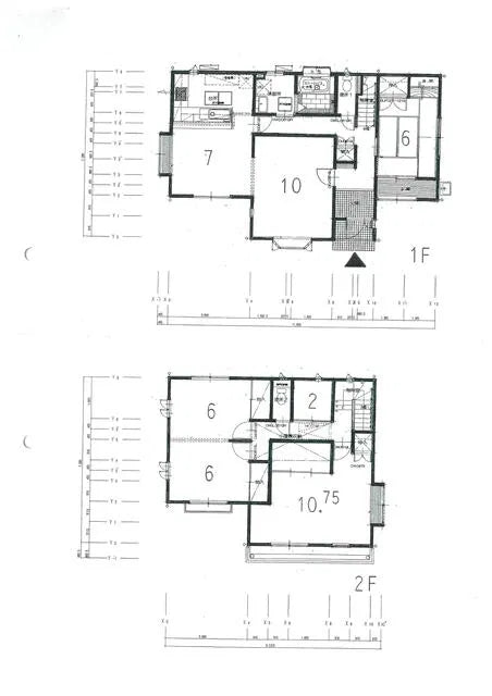
Rumah dengan 4 kamar tidur, 1 ruang tamu, 1 ruang makan, dan 1 dapur ini sangat cocok untuk keluarga. Dapur dilengkapi dengan meja counter yang memudahkan Anda merapikan meja setelah makan, serta kompor dengan tiga tungku yang memungkinkan Anda memasak makan malam sekaligus menyiapkan bekal untuk keesokan harinya. Rumah seluas 132,5 meter persegi ini juga memiliki ruang tamu yang luas serta balkon atap tempat Anda bisa menikmati indahnya langit malam. Terletak di lingkungan yang tenang dan dekat dengan transportasi umum, rumah berbahan kayu ini telah berdiri selama 27 tahun.


Lokasi

Terletak di jantung Kota Aizuwakamatsu, properti ini menawarkan tempat tinggal yang nyaman di Prefektur Fukushima yang bersejarah. Rasakan kekayaan budaya dan tradisi di kawasan yang dikenal dengan warisan samurainya serta pemandangan alamnya yang memukau. Jelajahi Tsuruga Castle yang megah, simbol ketahanan Aizu, dan selami sejarah menarik masyarakat Aizu di Aizu Bukeyashiki Museum.

これはカスタム製品タブです。製品ごとに異なるタブの内容を設定できます。製品構成ページの管理にタブのコンテンツを追加できます。

Ask more about this property!!!

"Become a Japanese Investor Today!"