57,800,000円

No review yet. Write Review
Regular price
¥57,800,000
Regular price
Sale price
¥57,800,000

Vendor : PDJ Indonesia

Product Type : apartment

Hurry! Only
0
units left in stock!
Reassurance Image
今すぐ売る
今コンタクトしてください
ローカルツアー
予約可能
顧客サポート
インドネシアで利用可能
VRツアー
利用可能
Trusted Image

3ベッド

1バス

64㎡(689平方フィート)

物件タイプ: アパート
総収量:
推定年間賃貸収入:

説明

アラハビーチまで徒歩約1分!東シナ海を望むユニット。賃借人は2023年4月下旬に退去します。
レストランやショップがたくさんあるアメリカンビレッジまで約1.7km。

位置

沖縄県中頭郡北谷町北谷

交通機関

沖縄自動車道「北中城」ICより約8分(約11km)

管理手数料

10,300円/月

修繕基金

4,200円/月

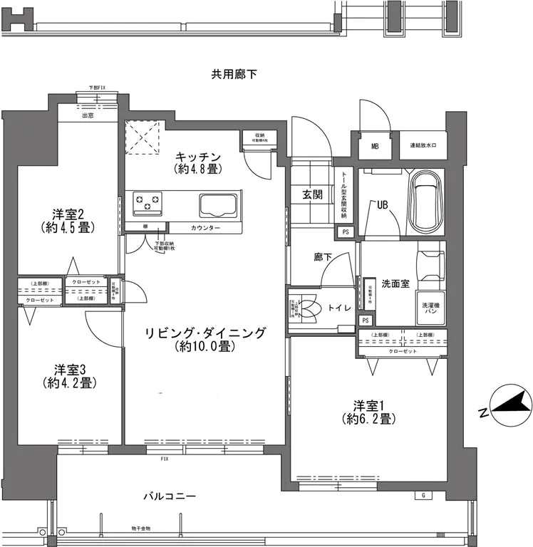
間取り図

3ベッド1バスリビング

フロアサイズ

63.99 m² (689 平方フィート)

プロパティフロア

11階建てビルの8階

バルコニーのサイズ

13.77 m² (148 平方フィート)

築年数

2017年2月

構造

RC

土地の権利

所有

総ユニット数

スターテス

から入手可能

聞く

駐車スペース

利用可能

取引の種類

証券会社

資産管理

フル委託

管理方法

パトロール

備考

備考:
賃借人は2023年4月下旬に退去予定です。

共用エリア:
-

ノート:
-

機能、施設、設備

  • 給湯

その他の費用

諸費用の内訳

運営費(維持費等)
総管理費(月額) : 14,500円
壊す
管理費:10,300円(非課税)/月
修理積立金:4,200円(非課税)/月
※光熱費は別途申し受けます。

購入時の1回限りの手数料
契約印紙代:30,000円
仲介手数料:1,973,400円
※印紙代・仲介手数料は実際の販売価格により変動いたします。
※売却年度分の固定資産税は、納期に応じて売主様・買主様に配分されます。

これはカスタム製品タブです。製品ごとに異なるタブの内容を設定できます。製品構成ページの管理にタブのコンテンツを追加できます。

Ask more about this property!!!

"Become a Japanese Investor Today!"