紀のマンション
- Regular price
- ¥183,000,000
- Regular price
-
- Sale price
- ¥183,000,000
- Unit price
- per
Vendor : PDJ Indonesia
Product Type : Building
Hurry! Only
0
units left in stock!
Couldn't load pickup availability

今すぐ売る
今コンタクトしてください
ローカルツアー
予約可能
顧客サポート
インドネシアで利用可能
VRツアー
利用可能

10
272 m² (2928 平方フィート)
- 物件タイプ:マンション
- 総利回り: 5.46%
- 推定年間家賃収入:9,960,000円
位置
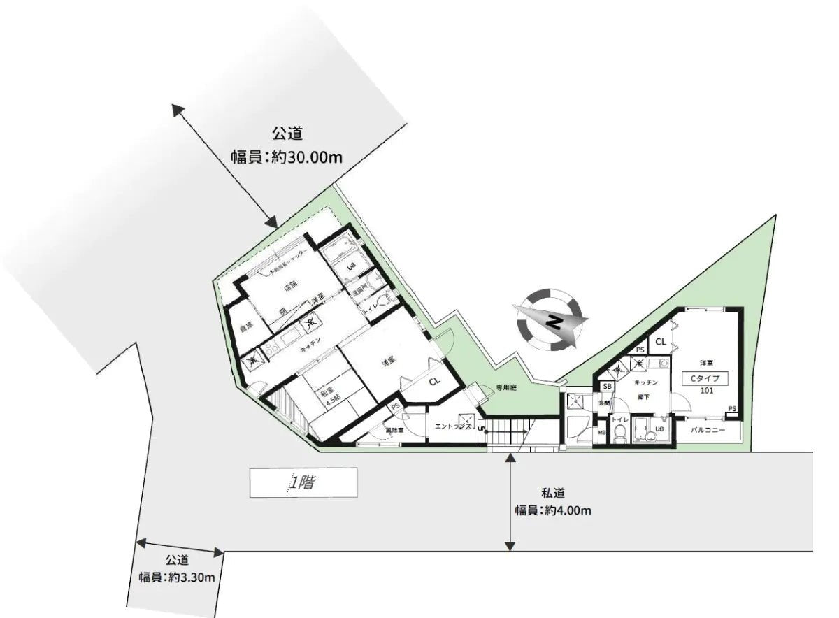
東京都北区滝野川四丁目
交通機関
都営三田線新板橋駅。徒歩12分
JR京浜東北根岸線王子駅。徒歩13分
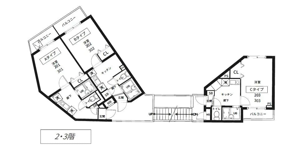
建物面積
271.98 m² (2928 平方フィート)
フロア
地上4階
専用エリア
-
ランドサイズ
129.38 m² (1393 平方フィート)
土地の権利
所有
総ユニット数
10台
築年数
2004年1月
構造
RC
スターテス
レンタル
から入手可能
聞く
駐車スペース
道路をつなぐ
北東:幅員約30.0m(公道)/北西:幅員約3.3m(公道)/西:幅員約4.0m(私道)
建ぺい率
80%
容積率
300%
都市計画
都市化促進地域
土地区分
住宅地
土地利用ゾーニング
近隣商業地区
国土利用計画法
-
取引の種類
証券会社
これはカスタム製品タブです。製品ごとに異なるタブの内容を設定できます。製品構成ページの管理にタブのコンテンツを追加できます。