Building with 2, Yokokawa lease

No review yet. Write Review
Regular price
¥100,000,000
Regular price
Sale price
¥100,000,000

Vendor : PDJ Indonesia

Product Type : House

Hurry! Only
0
units left in stock!
Reassurance Image
今すぐ売る
今コンタクトしてください
ローカルツアー
予約可能
顧客サポート
インドネシアで利用可能
VRツアー
利用可能
Trusted Image

 

  • Location

    2, Yokokawa, Sumida-ku, Tokyo

  • Traffic

    Chūō,Sōbu Line (Local) Kinshicho Station 9-minute walk
    Tokyo Metro Hanzomon Line Oshiage Station 10-minute walk
    Toei Asakusa Line Oshiage Station 10-minute walk

  • Property Type

    House

  • Other expenses


  • Exclusive area

    242.44 m²/ 2609.62 sqf

  • Land area

    118.25 m²/ 1272.84 sqf

  • Completion

    January, 1963 old (60 years old)

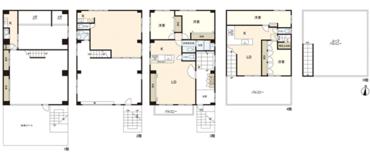
  • Plan

    2LDK

  • Structure

    Steel

  • Stories

    4 story bldg.

  • Status

    Occupied

  • Parking lot

    Available

  • Land right

    It is 36,610 yen until amount of ・ leased land (monthly basis) December, 2041 for an old law Leasehold (right of lease) tenancy

  • Land Category

    Residence

  • Abutting Roads

    The south side: Width about 11.0m (public road)

  • Use Districts/Building Coverage Ratio (BCR)/Floor-Area Ratio (FAR)

    Neighborhood Commercial District/80%/300%

  • City Planning

    Urbanization Promotion Area

  • Time of delivery/Time to move in

    Ask

  • Transaction type

    Brokerage

  • Updated on

    June 11, 2023

  • Next Update

    June 25, 2023

  • Remarks

 

これはカスタム製品タブです。製品ごとに異なるタブの内容を設定できます。製品構成ページの管理にタブのコンテンツを追加できます。

Ask more about this property!!!

"Become a Japanese Investor Today!"