6, Shirokane, Minato-ku, Tokyo

No review yet. Write review
Harga reguler
¥179,800,000
Harga reguler
Harga obral
¥179,800,000

Vendor : PDJ Indonesia

Property Type : House

Hurry! Only
0
units left in stock!
Reassurance Image
SELL Now
Contact Now
Local Tour
Booking Available
Customer Support
Available in Indonesia
VR Tour
Available
Trusted Image
  • Location

    6, Shirokane, Minato-ku, Tokyo> Surrounding map> I look for real estate of the Shirogane&Kakanawa

  • Traffic

    Tokyo Metro Namboku Line Shirokanedai Station 10-minute walk
    Toei Mita Line Shirokanedai Station 10-minute walk

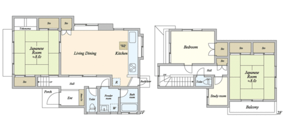
  • Property Type

    House

  • Other expenses


  • Exclusive area

    86.94 m²/ 935.82 sqf

  • Land area

    91.63 m²/ 986.30 sqf

  • Completion

    September, 1987 old (35 years old)

  • Plan

    3SLDK

  • Structure

    Wood

  • Stories

    2 story bldg.

  • Status

    Vacant

  • Parking lot

    Existence

  • Land right

    Freehold

  • Land Category

    Residence

  • Abutting Roads

    The Southwest side: Width about 2.6m (private road)

  • Use Districts/Building Coverage Ratio (BCR)/Floor-Area Ratio (FAR)

    Category 1 Medium-to-High-Rise Exclusive Residential District/60%/300%

  • City Planning

    Urbanization Promotion Area

  • Time of delivery/Time to move in

    Ask

  • Transaction type

    Brokerage

  • Updated on

    May 11, 2023

  • Next Update

    May 25, 2023

  • Remarks

Recommended

  • Parking lot
    Use of Parking lot is possible
  • Characteristics
    Order house
This is a custom product tab. You can set different content for tabs for each product. You can add content of the tabs in the admin on product configuration page.

Ask more about this property!!!

"Become a Japanese Investor Today!"