Hakuba Hokujo House

No review yet. Write review
Harga reguler
¥250,000,000
Harga reguler
Harga obral
¥250,000,000

Vendor : PDJ Indonesia

Property Type : House

Hurry! Only
0
units left in stock!
Reassurance Image
SELL Now
Contact Now
Local Tour
Booking Available
Customer Support
Available in Indonesia
VR Tour
Available
Trusted Image

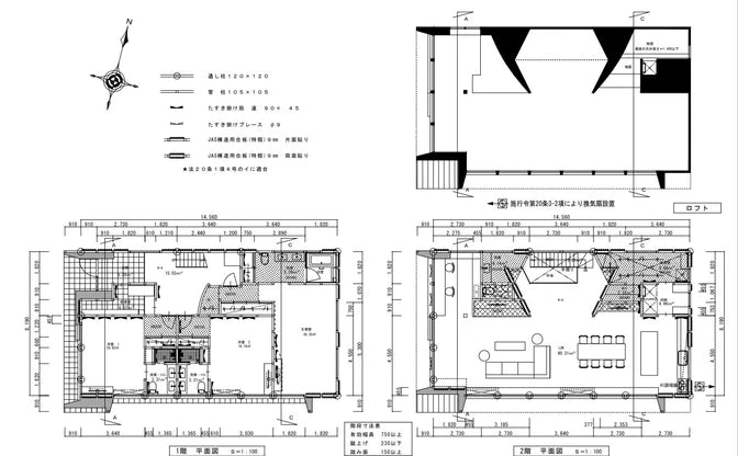
3020-783 Hokujo, Kitaazumi-gun Hakuba-mura, Nagano

3 | 1 | House

232.68m² (2504.54ft², 70.39 tsubo)

DETAILS

Price / m²
¥1,074,437
Parking
Pets
-
Structure
Wood Frame
Bldg-to-Land-Ratio
60%
Floor-space-Ratio
200%
Land Size
366.16m² / 3941.31ft² / 110.76 tsubo
Land Right
Freehold
Year Built
2015
Total Floors
2

TRANSPORTATION

  • Hakuba Station
    • (26 min.)

FEATURES

This is a custom product tab. You can set different content for tabs for each product. You can add content of the tabs in the admin on product configuration page.

Ask more about this property!!!

"Become a Japanese Investor Today!"