Oaza Totaru, Yuzawa-cho, Minamiuonuma-gun, Niigata Prefecture

No review yet. Write review
Harga reguler
¥1,400,000
Harga reguler
Harga obral
¥1,400,000

Vendor : PDJ Indonesia

Property Type : House

Hurry! Only
0
units left in stock!
Reassurance Image
SELL Now
Contact Now
Local Tour
Booking Available
Customer Support
Available in Indonesia
VR Tour
Available
Trusted Image

Deskripsi

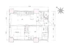
Kondominium berusia 34 tahun ini memiliki dua kamar tidur, ruang tamu, ruang makan, dan dapur (tujuh kamar bergaya Jepang, delapan kamar bergaya Barat, serta ruang tamu, ruang makan, dan dapur seluas sebelas tikar tatami). Dibangun dengan struktur RC, unit ini memiliki pencahayaan utama yang menghadap ke barat laut. Fasilitas di lokasi mencakup layanan concierge harian, pemandian air panas dengan pemandangan indah, kolam renang dalam ruangan yang dipanaskan, serta ruang olahraga. Air panas di onsen dipanaskan dan ditambahkan sesuai kebutuhan. Kondominium ini terletak di dekat Oaza Totaru, Yuzawa-Cho, Minamiuonuma-Gun, Prefektur Niigata, berjarak sekitar 3.400 meter dari Stasiun Echigo-Yuzawa di Jalur Shinkansen Joetsu. Properti ini berada di area tanpa batasan zonasi.


Area

Nikmati keindahan menakjubkan Oaza Totaru, Yuzawa-cho, Minamiuonuma-gun, Prefektur Niigata! Terletak di jantung Pegunungan Alpen Jepang, area ini menawarkan pemandangan alam yang spektakuler, ski kelas dunia di musim dingin, serta jalur pendakian yang tenang di musim panas. Rasakan kekayaan budaya desa ini yang terkenal dengan onsen tradisionalnya serta kuliner lokal yang lezat. Pengalaman ketenangan khas pedesaan Jepang bisa dinikmati tanpa harus jauh dari kota-kota besar.

This is a custom product tab. You can set different content for tabs for each product. You can add content of the tabs in the admin on product configuration page.

Ask more about this property!!!

"Become a Japanese Investor Today!"