2Beds Apartment in Naha-shi, Okinawa

No review yet. Write Review
Regular price
¥85,000,000
Regular price
Sale price
¥85,000,000

Vendor : PDJ Indonesia

Product Type : apartment

Hurry! Only
0
units left in stock!
Reassurance Image
SELL Now
Contact Now
Local Tours
Bookings Available
Customer Support
Available in Indonesia
VR Tour
Available
Trusted Image

2Beds

1Bath

90 m² (967 sqft)

Property Type: Apartment
Gross Yield:
Estimated Annual Rental Income:

Description

2 BR unit on the 28th floor, overlooking the city of Naha and the Kerama Islands from the balcony.
Located in Naha Shintoshin, a 30-story twin tower apartment on the 28th floor of the EAST building. Ample facilities such as a training room and concierge are also attractive.

Location

Omoromachi, Naha-shi, Okinawa

Transportation

About 7 minutes on foot (about 550m) from Omoromachi Station on the Okinawa Urban Monorail Line

Management Fee

14,650 JPY/month

Repairing Fund

 

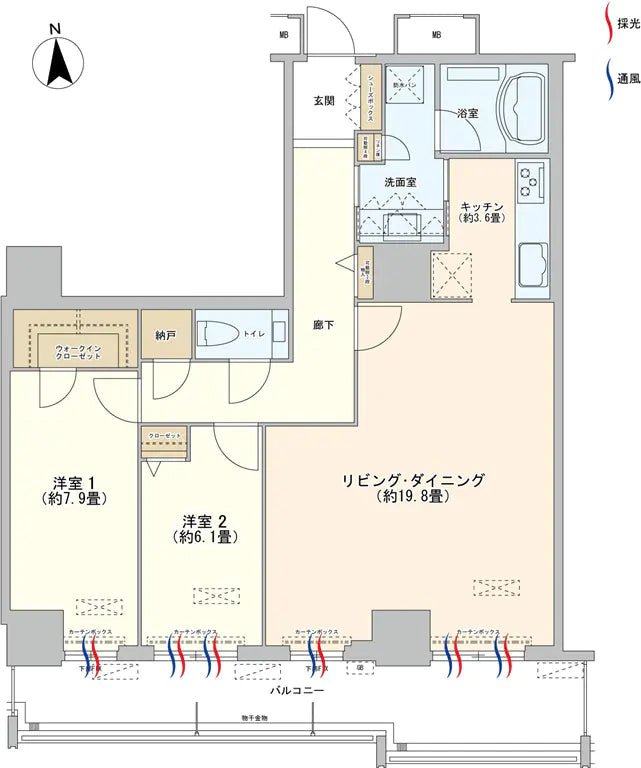
Floor Plan

2Beds 1Bath Living

Floor Size

89.85 m² (967 sqft)

Property Floor

Level 28 of 30-story building

Balcony Size

17.34 m² (187 sqft)

Year Built

May, 2015

Structure

RC

Land Rights

Ownership

Total Units

 

Status

Vacant

Available From

Ask

Parking Space

Available

Type of Transaction

Property Owner

Property Management

Full Consignment

Management Method

Full-time

Remark

Remarks:
Mortoecycle parking : 113 lots, bicycle parking : 244 lots (plus 8 lots for rental bicycle)

Common Area:
●Gym (in EAST, for a fee)
●Smorking space(East Tower ※kiosk is for a fee), Lobby with massage chair (East Tower), Guest room (East and West Tower for a fee), Outlook lounge(East and West Tower for a fee)

Notes:
-

Features, Facilities & Equipment

  • Hot Water Supply

Other Expenses

Details of expenses

Operating expenses (maintenance fee, etc.)
Total Management Fee(monthly) : JPY 27,870
Breakdown
Management fee : JPY 14,650(non-taxable)/monthly
Repair reserve fund : JPY 10,700(non-taxable)/monthly
Repair reserve for common areas: JPY 2,520(non-taxable)/monthly
※Utility charges will be billed separately.

Operating expenses (tax)
Property tax (annual) : JPY 171,600 (estimate)
Remarks: As of 2022, the fixed asset tax amount is decreased by special treatment of small residential land. Not sure how long this treatment lasts in the future.

One-time Fees upon purchasing
Contract Stamp Fee: JPY 0
Registration Tax: JPY 328,000 (estimate)
Property Acquisition Tax: JPY 561,000 (estimate) *Acquisition tax will be charged in three or four months after you purchase the property.
※Contract Stamp Fee are subject to change depending on the actual sales price.
※Property tax for the year of sale will be allocated to Seller and Buyer based on the delivery date.
This is a custom product tab. You can set different content for tabs for each product. You can add content of the tabs in the admin on the product configuration page.

Ask more about this property!!!

"Become a Japanese Investor Today!"