2Beds House in Karuizawa-machi,Kitasaku-gun, Nagano

No review yet. Write Review
Regular price
¥29,500,000
Regular price
Sale price
¥29,500,000

Vendor : PDJ Indonesia

Product Type : House

Hurry! Only
0
units left in stock!
Reassurance Image
SELL Now
Contact Now
Local Tours
Bookings Available
Customer Support
Available in Indonesia
VR Tour
Available
Trusted Image

2Beds

1Bath

101 m² (1090 sqft)

Property Type:House
Gross Yield:
Estimated Annual Rental Income:

Description

2 BR vacation house you can enjoy the greenery of Karuizawa while listening to the chirping of birds.
About 5-minute drive to Kyu-Karuizawa Ginza Shopping Street an 4-minute walk to the management office

Location

Oaza Karuizawa Aza Nozawa, Karuizawa-machi, Kitasaku-gun, Nagano

Transportation

Approximately 10min-drive from Hokuriku Shinkan Line Karuizawa Station.

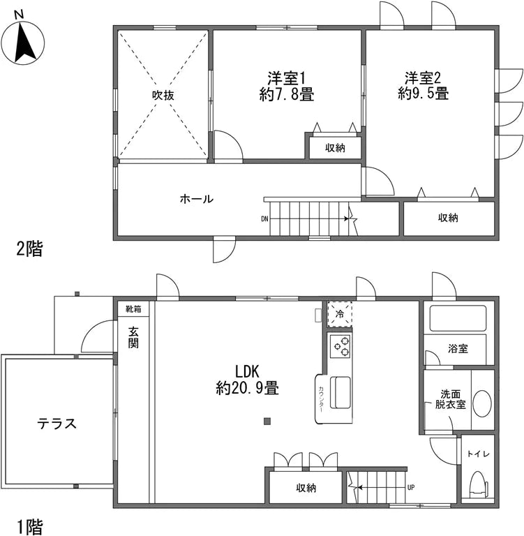
Floor Plan

2Beds 1Bath Living

Floor Size

101.25 m² (1090 sqft)

Floors

Year Built

Jul, 2008

Land Size

913.00 m² (9827 sqft)

Land Rights

Ownership

Structure

Wooden

Parking Space

Available

Connecting Roads

 -

Status

Occupied

Available From

Ask

Building Coverage Ratio

Floor Area Ratio

 -

City Planning

 -

Land Category

Land Use Zoning

 -

National Land Use Planning Act

 -

Type of Transaction

Brokerage

Remark

Remarks:
*In the case of corporations, common service management fee (123,200 yen/year, tax included) and basic water charge (29,700 yen/year, tax included) will be charged.

Common Area:
-

Notes:
-

Features, Facilities & Equipment

  • Air Conditioner
  • Hot Water Supply

Other Expenses

Details of expenses

Operating expenses (maintenance fee, etc.)
Total Management Fee(monthly) : JPY 8,618
Breakdown
Common meintenance fee : JPY 88,000/Annual
Water Usage fee : JPY 15,400/Annual
※Utility charges will be billed separately.

One-time Fees upon purchasing
Contract Stamp Fee : JPY 10,000
Brokerage Fee : JPY 1,039,500
Remarks : *In the case of corporations, common service management fee (123,200 yen/year, tax included) and basic water charge (29,700 yen/year, tax included) will be charged.
※Contract Stamp Fee and Brokerage Fee are subject to change depending on the actual sales price.
※Property tax for the year of sale will be allocated to Seller and Buyer based on the delivery date.

 

This is a custom product tab. You can set different content for tabs for each product. You can add content of the tabs in the admin on the product configuration page.

Ask more about this property!!!

"Become a Japanese Investor Today!"