3Beds Apartment in Atami-shi, Shizuoka
- Regular price
- ¥22,000,000
- Regular price
-
- Sale price
- ¥22,000,000
- Unit price
- per
Vendor : PDJ Indonesia
Product Type : Apartment
Couldn't load pickup availability


3Beds
1Bath
105 m² (1126 sqft)
- Property Type: Apartment
- Gross Yield:
- Estimated Annual Rental Income:
Description
3 BR unit on the 11th floor facing southeast. Enjoy the view of Sagami Sea from the balcony.
Resort condo with a large hot spring bath (with sauna and jacuzzi), an outdoor pool, and an athletic room. It is also recommended for customers who do not use a car as it is about 10m to the Atami Driving School bus stop. Pets allowed.
Location
Izusan character Nanaohara, Atami-shi, Shizuoka
Transportation
Get off at JR Tokaido Shinkansen "Atami" station, about 12 minutes by car (about 5.5 km)
Management Fee
46,040 JPY/month
Repairing Fund
15,700 JPY/month
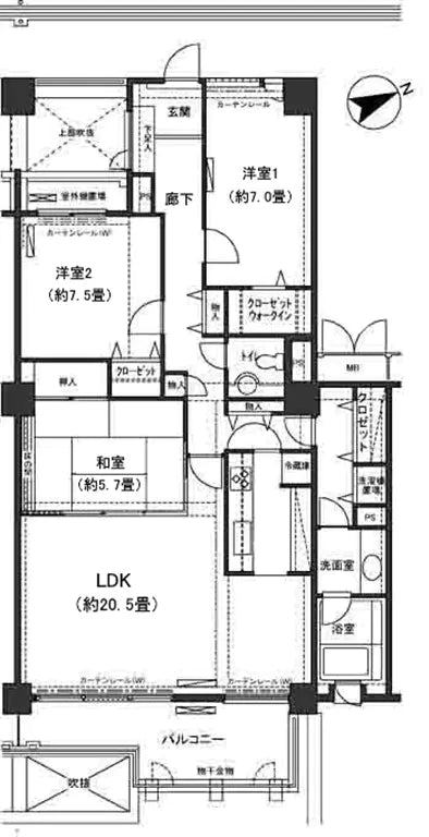
Floor Plan
3Beds 1Bath Living
Floor Size
104.63 m² (1126 sqft)
Property Floor
Level 11 of 12-story building
Balcony Size
13.44 m² (145 sqft)
Year Built
Jan, 1992
Structure
RC
Land Rights
Ownership
Total Units
Status
Occupied
Available From
Ask
Parking Space
Available
Type of Transaction
Brokerage
Property Management
Full Consignment
Management Method
Full-time
Remark
Remarks:
Bicycle parking lot: 500 yen/month 100 yen/day Motorcycle (over 50cc): 3000 yen/month 500 yen/day
Common Area:
●Observation hot spring bath (with sauna and jacuzzi) (Weekdays 15:00-23:00, Sat, Sun, and holidays 7:00-13:00, 15:00-23:00)(Investigating details etc.)
●Outdoor pool (free)
●Athletic room (free)
●OA room, lounge, putter golf course
Notes:
*Pets are allowed (with breeding regulations).* Please contact us for details on hot springs.
Features, Facilities & Equipment
- Hot Water Supply
Other Expenses
Details of expensesOperating expenses (maintenance fee, etc.)
Total Management Fee(monthly) : JPY 64,970
Breakdown
Management fee : JPY 46,040(non-taxable)/monthly
Repair reserve : JPY 15,700(non-taxable)/monthly
Water basic charge : JPY 1,880(non-taxable)/monthly
Onsen basic charge : JPY 1,250(non-taxable)/monthly
Association fee : JPY 100(non-taxable)/monthly
※Utility charges will be billed separately.
One-time Fees upon purchasing
Contract Stamp Fee : JPY 10,000
Brokerage Fee : JPY 792,000
Remarks : Pet cart fee: 500 yen (non-taxable)/month *Optional contract.
※Contract Stamp Fee and Brokerage Fee are subject to change depending on the actual sales price.
※Property tax for the year of sale will be allocated to Seller and Buyer based on the delivery date.