Apartment Building in Tama-ku,Kawasaki-shi, Kanagawa

No review yet. Write Review
Regular price
¥172,000,000
Regular price
Sale price
¥172,000,000

Vendor : PDJ Indonesia

Product Type : Apartment

Hurry! Only
0
units left in stock!
Reassurance Image
SELL Now
Contact Now
Local Tours
Bookings Available
Customer Support
Available in Indonesia
VR Tour
Available
Trusted Image

426 m² (4580 sqft)

Property Type: Apartment Building
Gross Yield: 8.09%
Estimated Annual Rental Income: 13,926,000 JPY

Location

Mita 1-chome, Tama-ku, Kawasaki-shi, Kanagawa

Transportation

Odakyū Odawara Line Shinjuku Station. 10min walk

Building area

425.52 m² (4580 sqft)

Floors

4 floors above ground

Exclusive area

 -

Land Size

333.44 m² (3589 sqft)

Land Rights

Ownership

Total Units

 -

Year Built

Mar, 1986

Structure

RC

Status

Rented

Available From

Ask

Parking Space

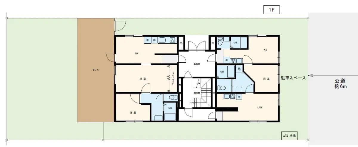
Connecting Roads

Northeast: Width about 6.0m (Public roads) / Southwest: Width about 6.0m (Public roads)

Building Coverage Ratio

60%

Floor Area Ratio

200%

City Planning

Urbanization promotion areas

Land Category

residential areas

Land Use Zoning

Category 1 medium-to-high-rise exclusive residential districts

National Land Use Planning Act

Type of Transaction

Brokerage

This is a custom product tab. You can set different content for tabs for each product. You can add content of the tabs in the admin on the product configuration page.

Ask more about this property!!!

"Become a Japanese Investor Today!"