Gifu Prefecture, Gero City, Kosaka Town, Sakashita 0.5 mi to Hida Osaka Station
- Regular price
- ¥5,000,000
- Regular price
-
- Sale price
- ¥5,000,000
- Unit price
- per
Vendor : PDJ Indonesia
Product Type : House
Couldn't load pickup availability


Deskripsi
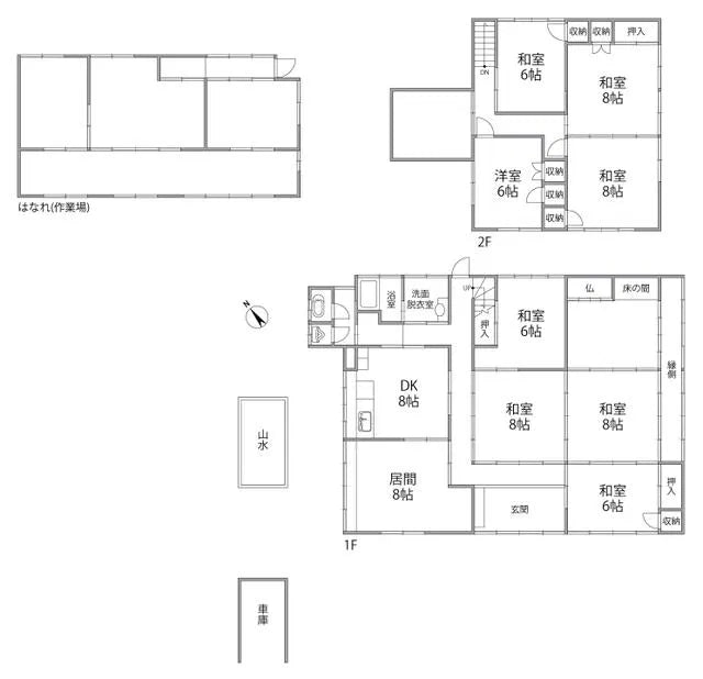
Rumah dengan 11 kamar tidur, 1 ruang tamu, 1 ruang makan, dan 1 dapur ini terletak di Kota Kosaka, Kota Gero, Prefektur Gifu. Struktur kayu itu berusia 45 tahun dan saat ini tidak ditempati. Properti ini memiliki banyak lahan pertanian dan bangunan terpisah dengan atap yang dalam yang dapat berfungsi sebagai pangkalan rahasia. Air disuplai oleh kanal dan sistem air kota, sementara properti terhubung ke sistem saluran pembuangan umum tetapi belum ke rumah. Terletak di Zona Kuning yang ditunjuk untuk risiko tanah longsor, properti tersebut akan diserahkan dalam kondisi saat ini. Transportasi umum terdekat adalah Stasiun Kosaka di Jalur Utama Takayama, 19 menit berjalan kaki.
Daerah
Terletak di jantung Prefektur Gifu, Kota Gero adalah surga indah yang terkenal dengan keindahan alam dan warisan budayanya yang kaya. Kota Kosaka, tempat properti ini berada, menawarkan pelarian yang tenang di tengah perbukitan dan tanaman hijau yang subur. Sakashita, lingkungan khusus, memancarkan suasana menawan dengan arsitektur tradisional dan penduduk setempat yang ramah. Benamkan diri Anda dalam komunitas yang semarak dan jelajahi permata tersembunyi di area tersebut, dari kuil yang tenang hingga pasar yang ramai.